(銚子市長塚町第4クレイドルガーデン)
◆松岸駅徒歩10分圏内で通勤通学にも便利な立地
◆幹線道路へのアクセス良好で生活利便施設も充実
◆駐車スペース2台
◆防犯カメラ標準設置
◆耐震+制震構造の安心住宅
□■おすすめポイント■□
●地盤調査実施済
●ベタ基礎工法により強度が高く、耐震性も優れています
●外壁サイディング仕様により耐熱性や耐久性も◎
◆住宅性能評価(設計、建設)耐震最高等級取得済みで地震保険50%割引が受けられます
◆フラット35S対象 金利優遇あります
☆分譲住宅シェアNo.1飯田グループ・アーネストワンの建売住宅
☆10年間の長期保証で安心
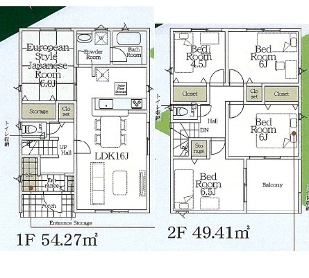
1号棟 2288万円 5LDK
土地面積:181.20㎡(54.81坪)
建物面積:103.68㎡(31.36坪)


2号棟 2388万円 4SLDK
土地面積:177.21㎡(53.60坪)
建物面積:102.06㎡(30.87坪)

































