(神栖市堀割3丁目01期リナージュ)
◆子育て家族からシニアまで安心して暮らせる閑静な街
◆余裕ある居住空間の間取り2階建住宅
◆永く住まい続けるための工夫が施された家
◆深芝小・神栖二中学区
□■ おすすめポイント ■□
◆住宅性能評価(設計、建設)耐震最高等級取得済みで地震保険50%割引が受けられます
◆フラット35S対象 金利優遇あります
◇対話しながらお料理できるカウンターキッチン
◇全居室に収納に便利な大容量クローゼット付き
◇シューズインクローク
◇ウォークインクローゼット
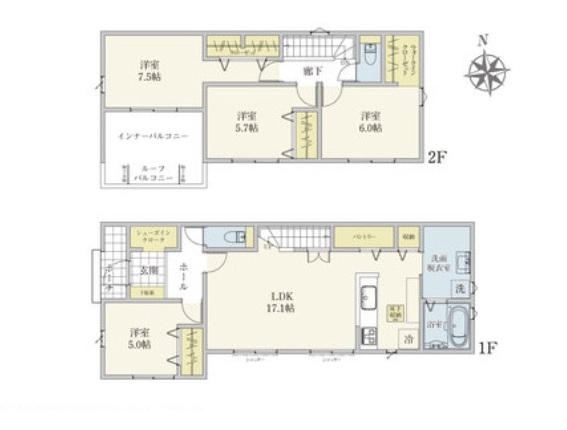
1号棟 2490万円 4LDK 2階建
土地面積:163.63㎡(49.50坪)
建物面積:115.09㎡(34.81坪)





























